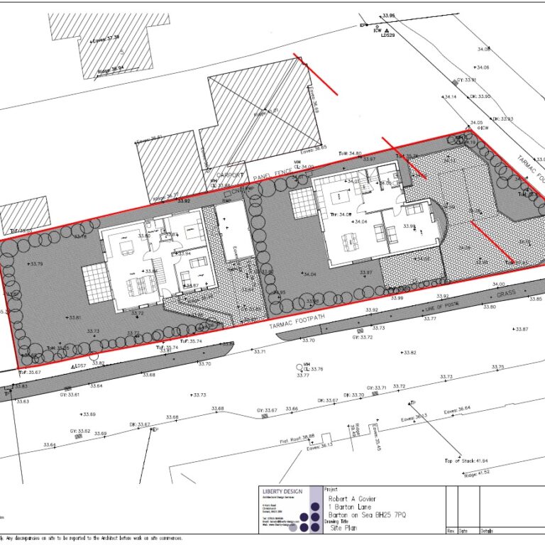
Barton Client: Barton Date: 2021 Image Gallery Category: Recent Projects13 May 2021Project navigationPreviousPrevious project:PooleNextNext project:Lymington